Description
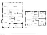
This cutie just had a bathroom remodeled in the primary suite, a 2nd floor banister installed as well as paint & plaster work along with other finishing touches, making this a 5 bedroom 2.5 bathroom home just steps from Chardon Square ready for its new owners! This nearly 3,000 sqft century home has that rare mix of history, artistry, and soul. From the moment you step onto the deep covered front porch, you'll sense the character that runs through this home. Inside, rustic-meets-refined finishes and it creates an eclectic, one-of-a-kind vibe--- think vintage character with a modern, artsy edge. The dramatic front sitting room with its statement fireplace is made for late-night conversations, vinyl spinning in the background, and cocktails that last long past dinner. You'll appreciate the moldings and woodworking, the huge windows and a dining room big enough for a gathering straight out of yesteryear, it all speaks to the home's rich history. The eat-in kitchen delivers modern comfort with a pantry and large breakfast area and a 1st floor bedroom or office is tucked beside the chic 1/2 bath (which could be modified to a 3rd full bathroom!) making hosting or work from home easy. Upstairs, you'll find 4 MORE bedrooms, including a large ensuite with tons of closet space. A screened porch runs the length of the home and a fully fenced yard allows for endless possibilities. Parts of the home have been lovingly restored over time and now it's ready for the next chapter. It's not just a house it's a mood, a statement, a lifestyle. There's opportunity here to continue the transformation, add value, and make it your own. It's for the buyer who loves history but craves something soulful, creative, and cool. Part design-magazine spread and part blank canvas this home invites you to add your own love, vision, and finishing touches to keep its story unfolding. Non-sexy updates are done too with furnace, HWT and AC replaced in 2018 and a newer roof too!
-
5BEDS
-
0.85ACRES
-
2BATHS
-
11/2 BATHS
-
2,856SQFT
-
$114$/SQFT
Listing information © 2025 YES-MLS.
Description
This cutie just had a bathroom remodeled in the primary suite, a 2nd floor banister installed as well as paint & plaster work along with other finishing touches, making this a 5 bedroom 2.5 bathroom home just steps from Chardon Square ready for its new owners! This nearly 3,000 sqft century home has that rare mix of history, artistry, and soul. From the moment you step onto the deep covered front porch, you'll sense the character that runs through this home. Inside, rustic-meets-refined finishes and it creates an eclectic, one-of-a-kind vibe--- think vintage character with a modern, artsy edge. The dramatic front sitting room with its statement fireplace is made for late-night conversations, vinyl spinning in the background, and cocktails that last long past dinner. You'll appreciate the moldings and woodworking, the huge windows and a dining room big enough for a gathering straight out of yesteryear, it all speaks to the home's rich history. The eat-in kitchen delivers modern comfort with a pantry and large breakfast area and a 1st floor bedroom or office is tucked beside the chic 1/2 bath (which could be modified to a 3rd full bathroom!) making hosting or work from home easy. Upstairs, you'll find 4 MORE bedrooms, including a large ensuite with tons of closet space. A screened porch runs the length of the home and a fully fenced yard allows for endless possibilities. Parts of the home have been lovingly restored over time and now it's ready for the next chapter. It's not just a house it's a mood, a statement, a lifestyle. There's opportunity here to continue the transformation, add value, and make it your own. It's for the buyer who loves history but craves something soulful, creative, and cool. Part design-magazine spread and part blank canvas this home invites you to add your own love, vision, and finishing touches to keep its story unfolding. Non-sexy updates are done too with furnace, HWT and AC replaced in 2018 and a newer roof too!
Related Properties
Listing information © 2025 YES-MLS. All rights reserved.
The data relating to real estate for sale on this website comes in part from the Internet Data Exchange program of YES-MLS. Real estate listings held by brokerage firms other than The Pinnacle Post Team | RE/MAX Crossroads Properties are marked with the Internet Data Exchange logo and detailed information about them includes the name of the listing broker(s). Information Deemed Reliable But Not Guaranteed. The photos may be altered, edited, enhanced or virtually staged. Data last updated 2025-11-10T00:07:38.84.