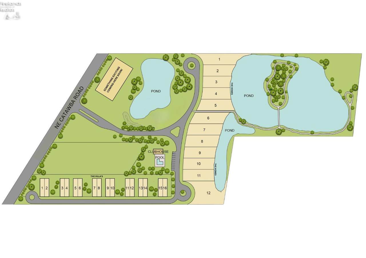
Description
Explore the exclusive opportunity to own one of 12 vacant lots available for sale within the prestigious Marsh's Crossing campus on Catawba Island. At Marsh's Crossing, the mission is to create a luxurious living experience that harmoniously blends the beauty of Lake Erie with elements of fun and nature. Dedicated to designing a vibrant community where residents can unwind, connect, and thrive in an environment that celebrates both relaxation and adventure. The state-of-the-art clubhouse (soon to be built), will feature a heated in-ground pool, inviting lounge area, and cutting-edge virtual golf zone, complemented by scenic nature trails and walking paths that encourage outdoor exploration. Each lot offers the unique advantage of selecting one of our preferred builders or bringing your own builder for an added fee. Allowing you to customize your dream home to suit your personal style and preferences. These premium lots are being sold on a first-come, first-served basis, so don't miss your chance to secure a piece of this luxurious community coming to Catawba Island and create the perfect retreat in a stunning natural setting. Images contain virtual renderings, some items can be subject to change.
-
0BEDS
-
0.21ACRES
-
0BATHS
-
01/2 BATHS
Description
Explore the exclusive opportunity to own one of 12 vacant lots available for sale within the prestigious Marsh's Crossing campus on Catawba Island. At Marsh's Crossing, the mission is to create a luxurious living experience that harmoniously blends the beauty of Lake Erie with elements of fun and nature. Dedicated to designing a vibrant community where residents can unwind, connect, and thrive in an environment that celebrates both relaxation and adventure. The state-of-the-art clubhouse (soon to be built), will feature a heated in-ground pool, inviting lounge area, and cutting-edge virtual golf zone, complemented by scenic nature trails and walking paths that encourage outdoor exploration. Each lot offers the unique advantage of selecting one of our preferred builders or bringing your own builder for an added fee. Allowing you to customize your dream home to suit your personal style and preferences. These premium lots are being sold on a first-come, first-served basis, so don't miss your chance to secure a piece of this luxurious community coming to Catawba Island and create the perfect retreat in a stunning natural setting. Images contain virtual renderings, some items can be subject to change.
© 2026 Firelands Association of Realtors MLS. All rights reserved. IDX information is provided exclusively for consumers' personal, non-commercial use and may not be used for any purpose other than to identify prospective properties consumers may be interested in purchasing. Information is deemed reliable but is not guaranteed accurate by the MLS or The Pinnacle Post Team | RE/MAX Crossroads Properties. Data last updated: 2026-04-13T15:33:27.71.
